株式会社MADARA​

  • ABOUT
  • SERVICE
  • WORKS
  • ACCESS
  • RECRUIT
  • CONTACT
  • BLOG

CLOSE
  • ABOUT
  • SERVICE
  • WORKS
  • ACCESS
  • RECRUIT
  • CONTACT
  • BLOG
  • FOLLOW US:

WORKS. 設計施工事例

WORKS

  • ALL
  • 宿泊施設
  • office-renovation
  • store-renovation
  • 再販
  • 賃貸
  • private-housing
  • other

オフィス

大和倉庫事務所家具提案&洗面トイレリノベ

種別:インテリア・部分リノベ

所在地:神奈川県秦野市

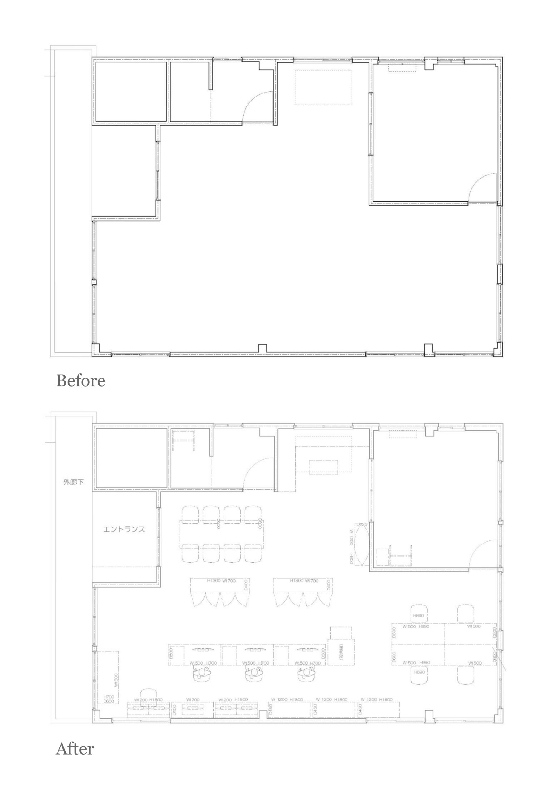
秦野市にある大和倉庫株式会社の事務所の家具提案と洗面トイレの改修を行いました。女性社員が多く、社員が心地よく働ける環境を目指しました。

  • BEFORE

  • 「BEFORE AFTER」 の図面

  • 木の天板にアイアンの脚のデスク。

  • 家具の選定だけでも空間は生まれ変わります。

  • 壁の雰囲気と相性の良いデスクです。

  • もちろん通常のデスクもあります。

  • 統一感のある家具で空間を仕切ります。

  • 既製品のデスクではなく、組み合わせて統一感があります。

  • 作業イスはもちろんデスクとの相性は抜群です。

  • ほっと一息つくスペースにもってこいな空間です。

  • どこか懐かしさを感じるイスを選びました。

  • 取手一つからもこだわります。

  • 清潔感のある造作洗面化粧台です。

  • 下部のオープンスペースと収納は欠かせません。

  • 木とゴールドでデザインしました。

  • 深さがあるシンクで、ゴールドの水栓にすることで高級感が増します。

  • 水廻りにはアクセントのゴールドを取り入れています。

BACK

お問い合わせはこちらです

  • 045-900-9472

    受付時間
    10時〜18時 (土日祝日除く)

  • メールでのお問い合わせ

  • 取材・監修等の
    お問い合わせはこちら

  1. HOME
  2. WORKS
  3. 大和倉庫事務所家具提案&洗面トイレリノベ
株式会社MADARA​

〒232-0006
神奈川県横浜市南区南太田3-20-17

  • HOME
  • ABOUT
  • SERVICE
  • WORKS
  • ACCESS
  • RECRUIT
  • CONTACT
  • BLOG
<br />
<b>Warning</b>:  Illegal string offset 'title' in <b>/home/madara2018/madara-web.com/public_html/wp-content/themes/sg096/footer.php</b> on line <b>90</b><br />

© 2021 MADARA Inc.