株式会社MADARA​

  • ABOUT
  • SERVICE
  • WORKS
  • ACCESS
  • RECRUIT
  • CONTACT
  • BLOG

CLOSE
  • ABOUT
  • SERVICE
  • WORKS
  • ACCESS
  • RECRUIT
  • CONTACT
  • BLOG
  • FOLLOW US:

WORKS. 設計施工事例


その空間には、物語がある。
文脈を読み、意味を重ね、見立てによって立ち上げた
MADARAの設計施工事例をご覧ください。

WORKS

  • ALL
  • 宿泊施設
  • office-renovation
  • store-renovation
  • 再販
  • 賃貸
  • private-housing
  • other

店舗

カワサキ文化会館

建物種別:店舗

延床面積:1,180㎡

所在地:神奈川県川崎市川崎区駅前本町 21-12

  • BEFORE

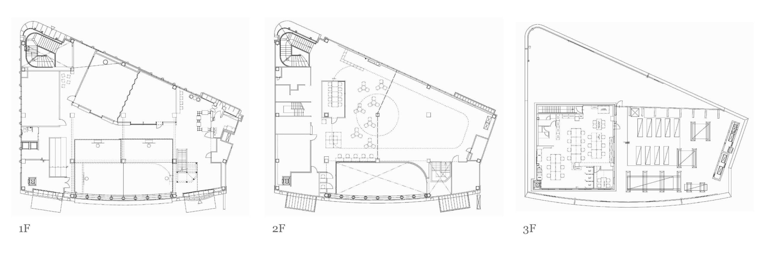
  • 図面(1F/2F/3F)

  • 工事中

  • バスケットコート

    ・吹抜けをうまく利用したバスケットコートができました。

  • バスケットコート

    ・以前利用されていた吊り飾りを生かしてます。リノベーションだからできる新旧が作り出す空間です。

  • フリーエリア

    ・パレットを利用して樹木の周りにベンチを作りました。

  • プレイエリア

    ・こちらにも以前の照明を残して新旧の空間です。

  • プレイエリア

    ・仲間と集まり、思うままに。

  • eスポーツエリア

    ・完全に仕切っているわけではないですが、空間をうまく作り上げています。

  • カフェエリア

    ・単管パイプでショップスペースを作っています。

  • カフェエリア

    ・普段は足場などで使われる材料ですが、今回は主役です。

  • 壁のイラスト

    ・壁はあえてボード仕上げにして、イラストを描いてます。

  • 室内ガラス

    ・デイベットがあり、習い事を待っている間もゆっくり過ごせます。

  • ダンススペース

    ・天井が高く開放感ある空間です。

  • ダンススペース

    ・ちょっとした工夫を凝らして収納を設けています。

BACK

お問い合わせはこちらです

  • 045-900-9472

    受付時間
    10時〜18時 (土日祝日除く)

  • メールでのお問い合わせ

  • 取材・監修等の
    お問い合わせはこちら

  1. HOME
  2. WORKS
  3. カワサキ文化会館
株式会社MADARA​

〒232-0006
神奈川県横浜市南区南太田3-20-17

  • HOME
  • ABOUT
  • SERVICE
  • WORKS
  • ACCESS
  • RECRUIT
  • CONTACT
  • BLOG

© 2021 MADARA Inc.