株式会社MADARA​

  • ABOUT
  • SERVICE
  • WORKS
  • ACCESS
  • RECRUIT
  • CONTACT
  • BLOG

CLOSE
  • ABOUT
  • SERVICE
  • WORKS
  • ACCESS
  • RECRUIT
  • CONTACT
  • BLOG
  • FOLLOW US:

WORKS. 設計施工事例


その空間には、物語がある。
文脈を読み、意味を重ね、見立てによって立ち上げた
MADARAの設計施工事例をご覧ください。

WORKS

  • ALL
  • 宿泊施設
  • office-renovation
  • store-renovation
  • 再販
  • 賃貸
  • private-housing
  • other

店舗

東海道BEER川崎宿工場

【日本空間デザイン賞2019入選】

用途:倉庫→ビール工場

延床面積:74.5㎡

所在地:神奈川県川崎市

東海道川崎宿という土地の文脈と、ビール醸造所兼バーという用途の組み合わせを意識して設計しました。

通りから眺められる外観は日本の組子と印伝の模様から着想を得て、川崎稲毛神社の御神木であり川崎区のシンボルツリーである銀杏の葉と、神社に縁があり勝ち虫として縁起の良いトンボの姿で穴をあけた木パネルを製作して建具としました。
伝統的な組子をそのまま使うのではなく、銀杏とトンボの日本的なグラフィックを用いた新しい表現に挑戦しています。

来店客には、ここがただのビールバーではなくビール醸造所であり、まさにここで造っているということをビールとともに味わってもらいたいという思いから、客席と醸造所ビールタンクを対面する位置関係にし設計しています。
この来店客と醸造所の関係を、建物の中から縁側を介して外の庭を眺める日本家屋の内と外が連続する関係のように表現したいと考えました。
新しい川崎宿を表現した和の空間から縁側の引違い和建具の外に、銀色に輝く現代的川崎の工場夜景の庭風景を眺めるということをイメージし、宿場町と工場地帯という川崎の街のアイデンティティを凝縮させています。
和空間とメカニックな金属の塊という異質なもの同士がぶつかりあう、しかし妙にマッチしてしまう不思議なコントラストの空間になりました。

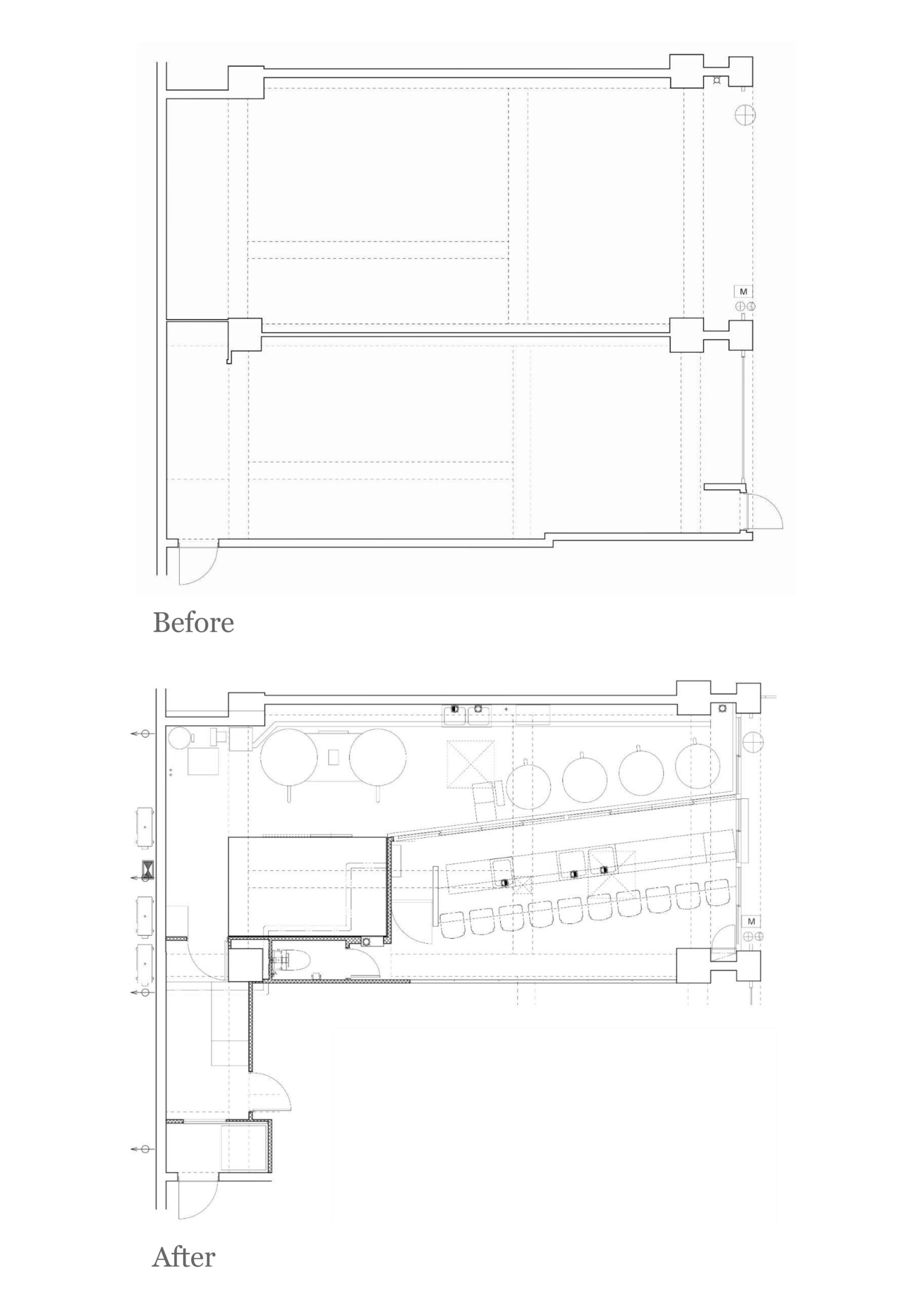
  • BEFORE

  • 「BEFORE AFTER」 の図面

  • 工事中

  • 縁側から眺める川崎の工業地帯をこちらで体験できます。

  • イチョウとトンボの日本的グラフィックの建具が映える外観です。

  • 宿場町と工場地帯という川崎の街のアイデンティティを凝縮しました。

  • 壁面には川崎の工業地帯からつながる町並みを演出してます。

  • 作りたてのビールを作っている空間で楽しんでください。

  • 川崎を凝縮した空間演出をしました。

  • 落ち着いた空間の中に和のスタイルを取り込んでいます。

  • 昼間は建具から入ってくる日の光が心地よいです。

  • イチョウとトンボを取り入れた唯一無二の建具です。

  • 縁側の外側にある工業地帯を表現した、ビールタンク。

  • 主役である醸造タンクは床から照らしてます。

  • 普段は主役にならないタンクがここでは主役になります。

  • トイレは空間に合わせてブラックにしてます。このこだわりが空間全体をまとめます。

  • 江戸切子の照明器具です。

  • スポットライトのように必要な箇所は適度に照らし、空間全体をまとめています。

BACK

お問い合わせはこちらです

  • 045-900-9472

    受付時間
    10時〜18時 (土日祝日除く)

  • メールでのお問い合わせ

  • 取材・監修等の
    お問い合わせはこちら

  1. HOME
  2. WORKS
  3. 東海道BEER川崎宿工場
株式会社MADARA​

〒232-0006
神奈川県横浜市南区南太田3-20-17

  • HOME
  • ABOUT
  • SERVICE
  • WORKS
  • ACCESS
  • RECRUIT
  • CONTACT
  • BLOG

© 2021 MADARA Inc.